Haus Nacke
Planung / Realisierung 2009 - 2010
Ahrweiler, St.-Peter-Straße
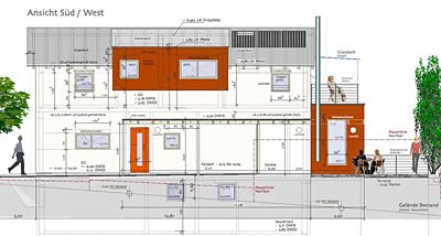
Seit Juni 2010 bewohnt Familie Nacke ihren Neubau an der Ahr. Das
2-teilige Langhaus ist um die Mittelachse in den Geschossen leicht
verschoben, dass diese Vor- und Rücksprünge Bezüge zum
Aussenraum in unterschiedlicher Qualität erzeugen. So entsteht ein
überdachter Eingangsbereich, die Loggia im Obergeschoss, sowie ein
verlängerter Wohnraum in den Garten mit einer geschützten
Terrasse zur Seite, als auch eine großzügige Dachterrasse im
Obergeschoss mit Weitblick auf das rückwärtige Ahrufer.
Großzügige innere Öffnungen ermöglichen im Wohn-
und Essbereich eine Verknüpfung der beiden Haushälften mit
überraschender Großzügigkeit. Flankierende leichte
Bauten aus Holz bieten einen Car- und einen Fahrrad-Port sowie eine
Werkstatt. Das Obergeschoss beherbergt die privaten Räumlichkeiten
der Familie. Das Souterrain bietet eine Einliegerwohnung, sowie viel
Platz für das kindliche Toben und Kickern, die Hauswirtschaft und
die Technik.
Die Fassade spielt mit weissen und roten Putzflächen, sowie
großzügigen Holz-Fenstern. Die Nebengebäude sind mit
Lärchenholz abgesetzt. Die Materialien im Inneren beschränken
sich auf Holz, Glas, Feinsteinzeug und Stahl. Großzügige
Ausblicke schaffen ein offenes lichtdurchflutetes Haus.
Bei der Planung wurde großer Wert auf Energieeffizienz und
Nachhaltigkeit gelegt. Das Gebäude unterschreitet den
Niedrig-Energie-Standard. Die primär Energie wird durch eine
Pellet-Anlage erzeugt, die solarthermisch unterstützt und
gespeichert wird. Ein unterirdischer Tank speichert das anfallende
Regenwasser.
Das Haus bietet ausreichend Wohn- und Nutzfläche, sowie eine Einliegerwohnung.











