Harry Seidler,
Sydney Australien
Mitarbeit 1988-89
Privat Penthouse & Capita Centre
Während eines Auslandsjahres ergab sich mir die Chance für Harry Seidler in Sydney zu arbeiten. Harry Seidler war Mitarbeiter und Schüler von Walter Gropius und Marcel Breuer. Arbeitete mit Oscar Niemeyer, Piere Luigi Nervi und Josef Albers zusammen.
Seine vielen Bauten wurden stets als Gesamtkunstwerk in der Tradition der Moderne entwickelt; erhielten Baukunst von Frank Stella, Alexander Calder und vielen andere mehr.
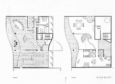
In meiner Zeit in Sydney habe ich an Präsentations-Zeichnungen für sein Privat Penthouse in Milson´s Point in Nord-Sydney gearbeitet, die 2. Erweiterung war gerade fertiggestellt. Sein Perfektionismus war unglaublich, für die Aussenaufnahmen des Gebäudes wurden die Strassenschilder angesägt und abgebogen (damals gab es noch kein Photoshop).
Ein weiterer Schwerpunkt meiner Arbeit lag im Ausbau des Capita Centre in Sydney. Für die Kunst am Bau konnte er Lin Utzon gewinnen, die Tochter des legendären Jörn Utzon der während der Bauarbeiten des opera houses Australien verlassen und nie wieder betreten hat. Lin war die erste der Familie die Sydney dank Harry Seidler wieder betreten hat. Ihre Kunst schmückt das Entree des Capita Centres. Das Hochhaus wurde an einem äusseren Stahlrahmen aufgehängt. Durch das dreiseitig eingebaut Hochhaus schraubt sich ein Lichthof als Atrium, das zur Mittagszeit die Sonne bis ins Erdgeschoss lässt.
Im März 2006 ist Harry Seidler im Alter von 82 Jahren gestorben, er hat bis zuletzt an seinen Projekten gearbeitet.
www.seidler.net.au/p>




